11212 South Pipeline Road - Euless, TX 76040
LIGHT INDUSTRIAL WAREHOUSE SPACE - MULTI-UNIT LIGHT INDUSTRIAL PARK
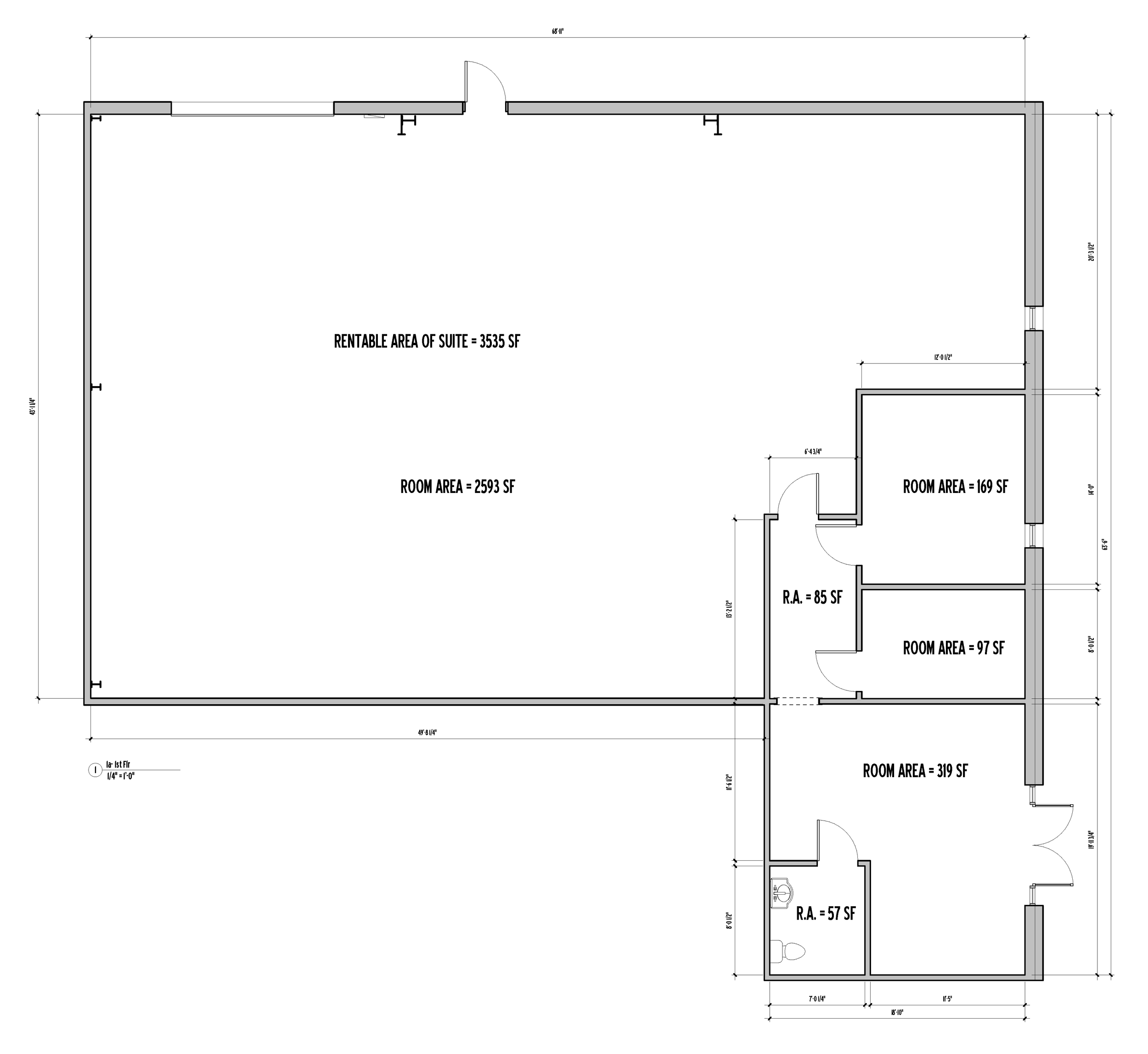
3,535 Sq Ft.
Leased - Newly renovated and ready for move-in
Perfect for Light Industrial, Manufacturing, Foods, Dust-Free environments. Space includes three offices.
DANNY PETERS
Property Manager
(817) 937-8046
DPeters@CorinthLand.com
Light Industrial Warehouse - Euless, Texas

